
Waidring
240 / 25 m²
550 m²
5
2022
Kauf
1.495.000,00 €
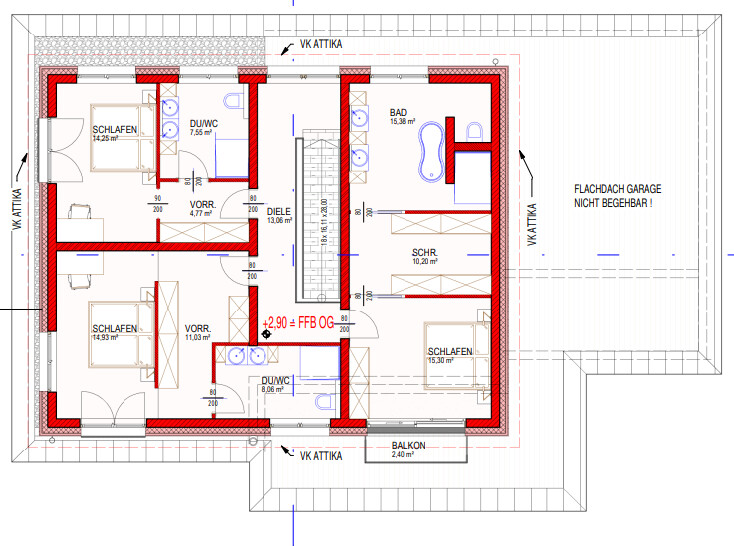
Dieses hochwertige Einfamilienhaus in attraktiver Lage von Waidring überzeugt durch ein durchdachtes Raumkonzept, großzügige Flächen und vielseitige Nutzungsmöglichkeiten für moderne Wohnbedürfnisse. Auf einem ca. 900 m² großen Grundstück bietet die Immobilie rund 240 m² Wohnfläche sowie eine großzügige, überdachte Terrassen und Balkone mit ca. 60 m², die zu entspannten Stunden im Freien einlädt. Besonders hervorzuheben ist die flexible Raumaufteilung, die sowohl Familien als auch Käufern mit Homeoffice-Bedarf ideale Voraussetzungen bietet. Das Haus verfügt derzeit über drei geräumige Schlafzimmern mit Bad en Suite und einen zusätzlichen Raum mit 23,44 m² der flexibel als viertes Schlafzimmer, Homeoffice, Gästezimmer oder Bibliothek genutzt werden kann und passt sich damit optimal den unterschiedlichen Lebenssituationen und Bedürfnissen an. Im Erdgeschoss empfängt Sie ein stilvolles Entrée, ein Multifunktionsraum, ein Gäste-WC und ein angrenzender Wirtschaftsraum. Das Herzstück der Wohnung ist der offene Wohn- und Essbereich, ausgestattet mit einem Effektkamin und einer hochwertigen Profiküche mit erstklassigen Geräten sowie einer praktischen Back-Kitchen. Bodentiefe Fenster lassen viel Tageslicht in den Raum und schaffen eine helle, einladende Atmosphäre. Von hier aus gelangen Sie direkt auf die überdachte Terrasse, die einen spektakulären Blick auf die umliegende Bergwelt freigibt. Eine Outdoorküche aus Edelstahl ergänzt den Wohnkomfort und sorgt für angenehme Stunden im Freien. Über eine elegante, freischwebende Treppe erreichen Sie das Obergeschoss. Hier befinden sich der Masterbereich mit Ankleide, ein großzügiges Badezimmer mit freistehender Badewanne und Dusche. Vom Masterbereich gelangen Sie auf einen großen teils überdachten Balkon mit weitreichendem Ausblick. Zwei weitere Gästezimmer verfügen jeweils über ein eigenes Bad en Suite. Die Immobilie ist mit zahlreichen maßgefertigten Einbauten, Schränken und Holzverkleidungen ausgestattet. Auch die technischen Details wurden mit höchster Sorgfalt ausgewählt. Elektrische Raffstores, eine Luft-Wärmepumpe, ein Internetanschluss sowie ein KNX Smart Home System gehören selbstverständlich zur Ausstattung. Für Ihre Fahrzeuge stehen ein Doppelcarport mit E-Anschluss sowie zwei Außenstellplätze zur Verfügung. Zusätzlich gibt es einen Technikraum und einen angrenzenden Abstellraum für Sport- und Gartengeräte. Die Immobilie ist kurzfristig verfügbar. Mobiliar ist Verhandlungsbasis.

AUßENANSICHT

AUßENANSICHT

WOHN-/ESSBEREICH

DESIGNER-KÜCHE

WOHN-/ESSBEREICH
Balkon
Badewanne
Dusche
Offene Küche
Gartennutzung
Objekt ID
PMI-0025
Objekttyp
haus
Zustand
neuwertig
Wohn-/Nutzfläche
240 / 25 m²
Grundstück
900 m²
Zimmer
5
Schlafzimmer
4
Gartenfläche
550 m²
Terrassen
1
Balkone
1
Balkon-/Terrassenfläche
550 m²
Badezimmer
3
Heizungsart
Fußbodenheizung
Befeuerung
Luftwärme
Ausstattung
luxus
Heizwärmebedarf (HWB)
45.2 kWh/(m²·a)
Gesamtenergieeffizienz-Faktor (fGEE)
0.63
Carports
2
Verfügbar ab
nach Absprache