
St. Jakob in Haus
64 m²
3
2027
Kauf
478.200,00 €
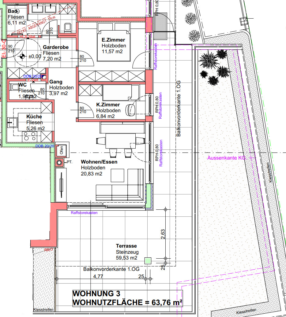
Diese attraktive Erdgeschosswohnung Top 3 besticht durch eine großzügige Wohnnutzfläche von ca. 64 m² und bietet mit zwei Schlafzimmern viel Platz für Paare oder kleine Familien. Besonders hervorzuheben ist die weitläufige Terrasse mit ca. 59 m², die nach Südosten ausgerichtet ist und somit sonnige Morgenstunden garantiert. Die Wohnung verfügt über einen hellen, offen gestalteten Wohn- und Essbereich, der direkten Zugang zur Terrasse bietet und zum entspannten Wohnen einlädt. Die moderne Raumaufteilung schafft ein angenehmes Wohnambiente und viel Flexibilität bei der Gestaltung. Die hochwertige Wohnanlage in St. Jakob in Haus überzeugt durch ihre ruhige Lage in leichter Hanglage sowie eine durchdachte Architektur. Die Anlage umfasst insgesamt nur neun Einheiten und bietet neben einer Tiefgarage mit ebenerdiger Zufahrt auch einen Personenlift. Die Bushaltestelle befindet sich nur etwa 50 Meter entfernt, sodass der Skibus Sie bequem zu den umliegenden Skigebieten bringt. Es sind noch weitere Wohnungen mit variierenden Grundrissen und Preisklassen verfügbar.

VISUALISIERUNG AUßENANSICHT

VISUALISIERUNG AUßENANSICHT

VISUALISIERUNG WOHNBEREICH
Dusche
Offene Küche
Lift
Objekt ID
PMI-0229
Objekttyp
wohnung
Zustand
erstbezug
Wohnfläche
64 m²
Kellerfläche
6 m²
Zimmer
3
Schlafzimmer
2
Terrassen
1
Badezimmer
1
Heizungsart
Fußbodenheizung
Befeuerung
PelletSolar
Ausstattung
luxus
Heizwärmebedarf (HWB)
30 kWh/(m²·a)
Gesamtenergieeffizienz-Faktor (fGEE)
0.53