
Ellmau
283 m²
6
2013
Kauf
3.700.000,00 €
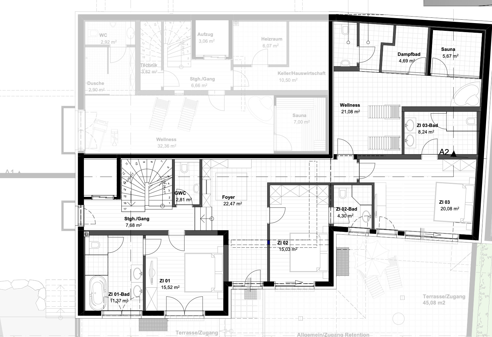
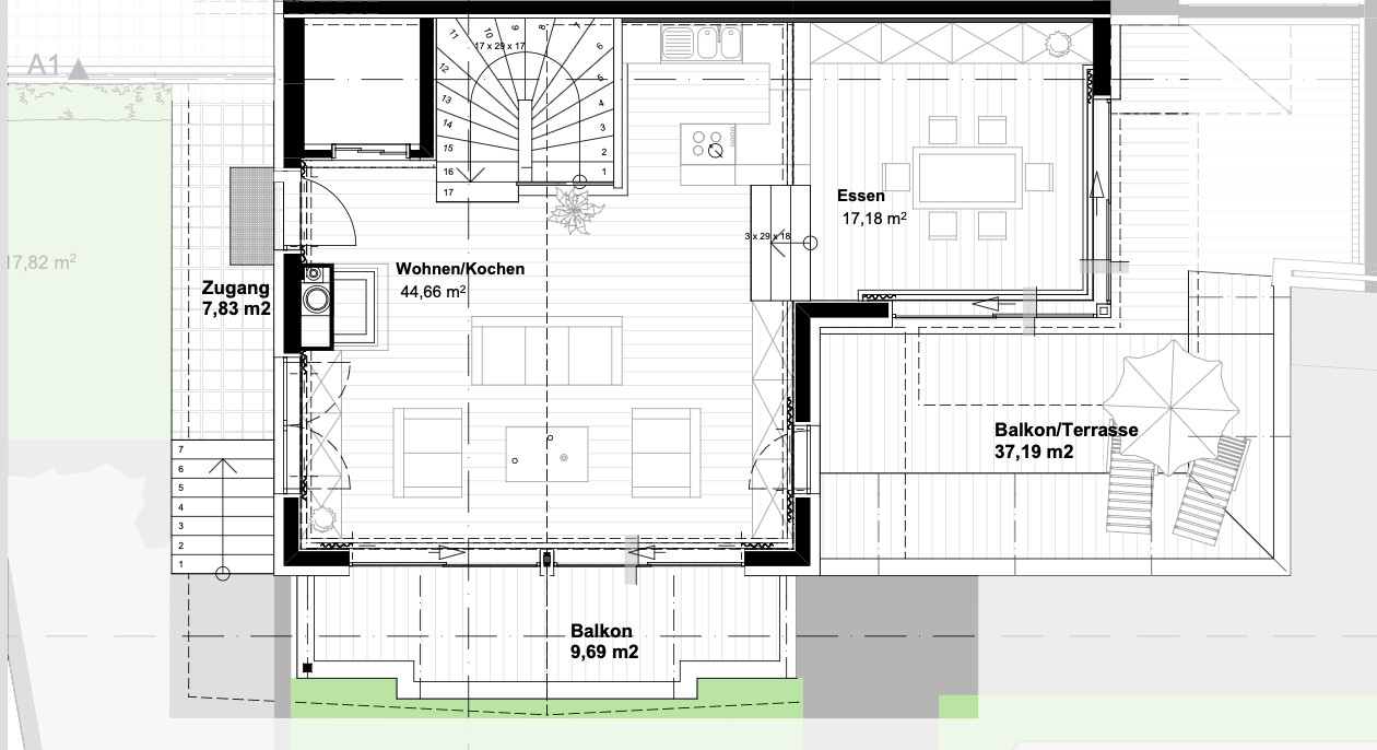
In einer der besten und schönsten Lagen von Ellmau gelegen, präsentiert sich dieses Chalet als außergewöhnliches Zuhause für alle, die Ruhe, Privatsphäre und einen traumhaften Ausblick schätzen. Die Lage überzeugt durch ihre absolute Idylle, ohne dabei auf die Nähe zu den Annehmlichkeiten des Ortes verzichten zu müssen – ein gleichermaßen exklusiver wie harmonischer Rückzugsort am Fuße des Wilden Kaisers. Das Chalet bietet eine durchdachte Architektur und eine Nutzfläche von rund 283 Quadratmetern. Im Erdgeschoss empfängt ein einladendes Entree, das direkt in den privaten Bereich führt. Drei Schlafzimmer mit jeweils Bad en Suite sorgen für höchsten Komfort und Rückzugsmöglichkeiten. Ein stilvoll gestalteter Wellnessbereich lädt zu erholsamen Stunden ein. Weiters finden Sie im Erdgeschoss eine schöne Südwestterrasse, die den Sonnenverlauf ideal einfängt und einen herrlichen Blick in die umliegende Natur bietet. Im Untergeschoss stehen ein großzügiger Hauswirtschaftsraum, ein weiteres Schlafzimmer sowie ein flexibel nutzbarer Allzweckraum zur Verfügung. Ob Fitness, Hobby oder zusätzlicher Stauraum – diese Ebene bietet vielfältige Nutzungsmöglichkeiten und passt sich den individuellen Bedürfnissen perfekt an. Das Obergeschoss bildet das Herzstück des Hauses. Hier öffnet sich ein großzügiger, offen gestalteter Wohn- und Essbereich unter einem beeindruckenden Sichtdachstuhl, der dem Raum eine besondere Weite und Wärme verleiht. Ein offener Kamin schafft eine behagliche Atmosphäre, und die angrenzende Südwestterrasse erweitert den Wohnraum ins Freie und bietet einen wunderschönen Blick über die Landschaft. Komfortabel ergänzt wird das Angebot durch einen Personenaufzug, der alle Ebenen miteinander verbindet, sowie ein Carport direkt am Haus. Dieses Chalet vereint moderne Tiroler Wohnkultur mit exklusiver Lage und hochwertiger Ausstattung – ein Zuhause, das Eleganz, Naturverbundenheit und Lebensqualität in perfekter Balance vereint.

AUßENANSICHT

WOHN-/ESSBEREICH

WOHN-/ESSBEREICH

WOHN-/ESSBEREICH

SCHLAFZIMMER
Balkon
Badewanne
Dusche
Sauna
Einbauküche
Gartennutzung
Lift
Objekt ID
PMI-0290
Objekttyp
haus
Zustand
neuwertig
Wohnfläche
283 m²
Zimmer
6
Schlafzimmer
4
Terrassen
3
Balkone
1
Badezimmer
4
Heizungsart
Fußbodenheizung
Befeuerung
Gas
Ausstattung
luxus
Heizwärmebedarf (HWB)
36.2 kWh/(m²·a)
Carports
1